progeCAD 2017 Professional


progeCAD2017-3d-virtual-box_shell.png
progeCAD 2017 Professional

DownloadBuy
progeCAD 2017:
 enjoy the new Ribbon Interface, the power of 64 bit and Multicore support.

progeCAD 2017 Professional: a stable, complete and easy-to-use DWG CAD at a fair price.



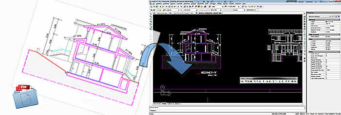
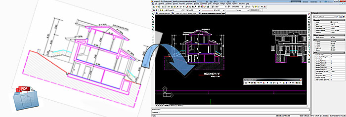
  • progeCAD, is an AutoCAD® compatible 2D/3D CAD application that works with AutoCAD® DWG files from AutoCAD® 2.5 through AutoCAD® 2017! The best solution for AECMCAD and all generic CAD usages. 
     
  • progeCAD's original format DWG ensures a complete compatibility with AutoCAD® WITHOUT ANY FILE CONVERSION and without loosing any critical information. progeCAD lets you export drawing files both in DWG and DXF drawing file format.
  • progeCAD supports an interface complete with "AutoCAD® - Like" Classic icon and Ribbon menus and "AutoCAD® - Like" commands.
  • progeCAD Professional is general-purpose 2D and 3D design software useful for CAD field & concept sketch. It offers very high compatibility with AutoCAD® and Direct Modeling in native .dwg. progeCAD is so much more than an alternative! progeCAD offers more CAD functions than AutoCAD® LT at a fractional price to AutoCAD®, ArchiCAD® or Microstation®.
    New licenses include 1 month free support.
     
  • New amazing features:
    Ribbon Interface, 64 Bit, MultiCore support, new editing commands, improved features, progeCAD Cloud and more...
  • Download the FULL VERSION for FREE for a non-obligation, fully-functional thirty-day trial.
  • Download the amazing eBooks by Ralph Grabowski available for free to familiarize with progeCAD and customize it.
Download "Inside progeCAD"  - Download "Tailoring progeCAD"

Always updated with iCare

iCare
1 year subscription-based maintenance and support program available. The iCare subscription offers a variety of benefits to help customers get the most out of their progeCAD software. Cut down upgrades costs and receive more value!
For an annual fee, iCare customers get convenient access to the following benefits:
  • Software: you receive all progeCAD updates and new versions (e.g. iCare subscribers will receive progeCAD 2018 at no charge).
  • Support: technical assistance via the web with the new help desk service through ticket, email and remote support.
Buy iCare now bundled with your progeCAD licenses and save 18% on the iCare price.

Post a Comment

 
Top